Торговая площадка "КОНВЕЙЕРНЫЕ СИСТЕМЫ" Тел.: +7(383) 299-37-59
Тел: +7-923-128-03-40
Главная
Конвейерные ленты SAVA
Обзор конвейерных лент SAVA (Словения)
Конвейерная лента CHEVRON
Конвейерная лента ELEVATOR
Конвейерная лента RIPCHECK
Конвейерные ленты SUPER GRIP и FINE GRIP
Конвейерная лента W и WH
Конвейерная лента MOR, MG, GMG
Конвейерная лента T1, T2, T3
Конвейерная лента EMP, EP
Конвейерная лента S, K
Трубчатая конвейерная лента
Многопрокладочная конвейерная лента
Двухпрокладочная конвейерная лента
Соединение лент
Холодная вулканизация конвейерных лент
Механическая стыковка - замки Flexco и Alligator
Замок FLEXCO BOLT SOLID PLATE
Замок FLEXCO BOLT SOLID PLATE с резиновым покрытием
Замок FLEXCO RIVET SOLID PLATE
Замок FLEXCO BOLT HINGED
Замок FLEXCO RIVET HINGED
Замок ALLIGATOR READY SET
Замок ALLIGATOR LACING
Замок ALLIGATOR RIVET
Замок ALLIGATOR PLASTIC RIVET
Ремонт продольных порывов конвейерных лент
Ролики конвейерные
Обзор роликов конвейерных
Ролики конвейерные гладкие
Ролики дефлекторные
Ролики амортизирующие
Ролики приводные
Ролики конические
Ролики модернизированные
Ролики гравитационные
Роликоопоры
Роликоопоры - обзор
Верхние желобчатые роликоопоры
Прямые роликоопоры
Нижние желобчатые роликоопоры
Подвесные (гирляндные) роликоопоры
Центрирующие роликоопоры
Дефлекторные роликоопоры
Амортизационные роликоопоры
Конвейеры
Производство конвейеров и конвейерного оборудования
Приводные ремни
Обзор приводных ремней и шкивов
Техника для склада
Складские тележки

Notice: Undefined variable: ttt in /home/skon/1.skon.z8.ru/docs/ins.inc on line 11
Роликоопоры > Дефлекторные роликоопоры


Роликоопоры конвейерные дефлекторные


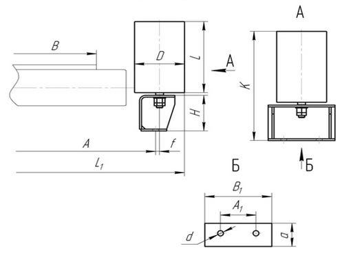
Дефлекторные роликоопоры преднозначены для удержания ленты в заданном направлении, и схода ленты на сторону. Они устанавливаются в промежутках между желобчатыми роликоопорами в контакте с ребром конвейерной ленты.


Верхние дефлекторные желобчатые роликоопоры

Верхние дефлекторные ролики рекомендуется устанавливать по всей трассе конвейера с шагом 10-15 м., а также в местах, где в результате схода ленты на сторону может произойти повреждение кромок ленты.

Применяется для ширины ленты от 400 до 1600 мм., диаметр ролика 89 по 159мм. Условное обозначения- ДЖ80-159, где ДЖ - дефлекторные желобчатые, 80 - ширина ленты, 800мм., 159 - диаметр ролика.
Дефлекторная роликоопора конвейерная
Ширина ленты В, мм Обозначение Размеры, мм Масса общая, кг
D L Н l К А1 В1 a d А L1
400 ДЖ-40-89-30 89 160 265 23 432 60 100 60 14 620 734 8,7
ДЖ-40-102-30 102 435 745 9,7
500 ДЖ-50-89-30 89 160 265 23 432 60 100 60 14 720 834 8,7
ДЖ-50-102-30 102 435 845 9,7
650 ДЖ-65-89-30 89 160 265 23 432 60 100 60 14 870 984 10,1
ДЖ-65-102-30 102 432 995 11,1
800 ДЖ-80-89-30 89 200 346 8 548 60 110 65 18 1100 1190 14,8
ДЖ-80-102-30 102 551 1195 16
ДЖ-80-127-30 127 557 1217 19,8
ДЖ-80-127-30-1 127 406 617 20,8
1000 ДЖ-100-89-30 89 200 346 8 548 60 110 65 18 1300 1390 15,4
ДЖ-100-102-30 102 551 1395 16,6
ДЖ-100-127-30 127 557 1417 20,4
ДЖ-100-127-30-1 127 406 617 21,2
1200 ДЖ-120-89-30 89 200 406 8 608 60 110 65 18 1550 1640 16,6
ДЖ-120-102-30 102 611 1645 17,8
ДЖ-120-127-30 127 617 1667 21,6
ДЖ-120-127-30-1 127 510 15 721 70 130 75 1681 25,8
ДЖ-120-159-30 159 728 1704 30,3
1400 ДЖ-140-127-30 127 200 510 15 721 70 130 75 18 1750 1881 26,2
ДЖ-140-159-30 159 728 1904 30,7
ДЖ-140-159-30-1 159 580 798 32,1
1600 ДЖ-160-127-30 127 200 510 15 721 70 130 75 18 1950 2081 26,6
ДЖ-160-159-30 159 728 2104 31,1
ДЖ-160-159-30-1 159 580 798 32,5
1800 ДЖ-180-159-30 159 200 640 25 858 100 160 120 24 2150 2240 40,5
2000 ДЖ-200-159-30 159 200 640 25 858 100 160 120 24 2400 2490 41,5



Нижние дефлекторные желобчатые роликоопоры

Нижние дефлекторные ролики устанавливаются на секциях средней части конвейера с шагом 10-15 м., а также в тех местах, где возможен интенсивный сход ленты и повреждение ее кромок.

Применяется для ширины ленты от 400 до 1600 мм., диаметр ролика 89 по 159мм. Условное обозначения - ДЖ80-159, где ДЖ- дефлекторные желобчатые, 80 - ширина ленты, 800 мм., 159 - диаметр ролика.
Дефлекторная роликоопора конвейерная
Ширина ленты В, мм Обозначение Размеры, мм Масса общая, кг
D f К А1 В1 a d А L1
800 ДНЖ-80-89 89 20 263 220 285 75 15 1100 1234 7,1
ДНЖ-80-102 102 1237 7,7
ДНЖ-80-127 127 1262 9,6
1000 ДНЖ-100-89 89 35 263 220 285 90 15 1300 1464 7,3
ДНЖ-100-102 102 1467 7,9
ДНЖ-100-127 127 1492 9,8
1200 ДНЖ-120-89 89 5 263 220 285 65 15 1550 1654 7
ДНЖ-120-102 102 1657 7,6
ДНЖ-120-127 127 1682 9,5
1400 ДНЖ-140-127 127 5 272 250 300 80 19 1750 1880 11,1
ДНЖ-140-159 159 1911 13,4
1600 ДНЖ-160-127 127 50 272 250 300 125 19 1950 2170 11,4
ДНЖ-160-159 159 2201 13,7
1800 ДНЖ-180-127 127 50 272 250 300 125 19 2150 2370 11,4
ДНЖ-180-159 159 2401 13,7
2000 ДНЖ-200-159 159 50 272 250 300 130 24 2400 2691 13,7



Верхние дефлекторные прямые роликоопоры

Дефлекторная роликоопора конвейерная
Ширина ленты В, мм Обозначение Размеры, мм Масса общая, кг
D L Н f К А1 В1 a d А L1
400 ДП-40-89 89 160 80 10 248 60 135 56 15 620 729 4,5
ДП-40-102 102 742 5
500 ДП-50-89 89 160 80 10 248 60 135 56 15 720 829 4,5
ДП-50-102 102 842 5
650 ДП-65-89 89 160 80 10 248 60 135 56 15 870 979 4,5
ДП-65-102 102 992 5
800 ДП-80-89 89 200 100 10 308 90 170 65 15 1100 1209 5,8
ДП-80-102 102 1222 6,4
ДП-80-127 127 1247 8,3
1000 ДП-100-89 89 200 100 10 308 90 170 65 15 1300 1409 5,8
ДП-100-102 102 1422 6,4
ДП-100-127 127 1447 8,3
1200 ДП-120-89 89 200 100 10 308 90 170 65 15 1550 1659 5,8
ДП-120-102 102 1672 6,4
ДП-120-127 127 1697 8,3
1400 ДП-140-127 127 200 150 25 358 90 170 75 19 1750 1927 10,1
ДП-140-159 159 1959 12,4
1600 ДП-160-127 127 200 150 25 358 90 170 75 19 1950 2127 10,1
ДП-160-159 159 2159 12,4
1800 ДП-180-127 127 200 150 25 358 90 170 75 19 2150 2327 10,1
ДП-180-159 159 2359 12,4
2000 ДП-200-159 159 200 150 10 358 100 180 85 24 2400 2579 12,8



Нижние дефлекторные прямые роликоопоры

Дефлекторная роликоопора конвейерная
Ширина ленты В, мм Обозначение Размеры, мм Масса общая, кг
D L f К А1 В1 a d А L1
400 ДНП-40-89 89 160 10 215 180 230 63 15 620 729 5,6
ДНП-40-102 102 742 6,1
500 ДНП-50-89 89 160 10 215 180 230 63 15 720 829 5,6
ДНП-50-102 102 842 6,1
650 ДНП-65-89 89 160 10 215 180 230 63 15 870 979 5,6
ДНП-65-102 102 992 6,1
800 ДНП-80-89 89 200 10 255 220 285 63 15 1100 1209 6,7
ДНП-80-102 102 1222 7,3
ДНП-80-127 127 1247 9,2
1000 ДНП-100-89 89 200 10 255 220 285 63 15 1300 1409 6,7
ДНП-100-102 102 1422 7,3
ДНП-100-127 127 1447 9,2
1200 ДНП-120-89 89 200 10 255 220 285 63 15 1550 1659 6,7
ДНП-120-102 102 1672 7,3
ДНП-120-127 127 1697 9,2
1400 ДНП-140-127 127 200 20 150 250 300 80 19 1750 1917 11,3
ДНП-140-159 159 1949 13,5
1600 ДНП-160-127 127 200 20 150 250 300 80 19 1950 2117 11,3
ДНП-160-159 159 2149 13,5
1800 ДНП-180-127 127 200 20 150 250 300 80 19 2150 2317 11,3
ДНП-180-159 159 2349 13,5
2000 ДНП-200-159 159 200 0 150 260 300 80 24 2400 2559 13,5



заполнить заявку на конвейерные роликоопоры



  Copyright © 2015, Snabkonveyer.ru Копирование данных запрещено.
заводы, промышленность России - wiki-prom.ru
Сайт обслуживается компанией СибирьИнфо   

Notice: Undefined variable: n in /home/skon/1.skon.z8.ru/docs/footer.inc on line 66